TUTTOTECNICA.IT
Il pił grande raccoglitore di materiale tecnico del web
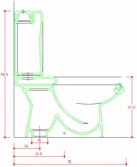
WC - prospetto laterale - file dwg

HOME PAGE

MENU

Analisi prezzi

Blocchi DWG

Catasto

Conservatorie

Certificazione energetica

Condominio

Condono Edilizio

CTU e CTP

Disegno

Estimo

Espropri

Filettature

Mercuriali

Modulistica

Norme per la misurazione

Passi carrai

Pesi

Sicurezza lavoro

Software tecnico

Stime immobiliari

Successioni

Tabelle dimensioni

Tabelle millesimali

Tip & Trick hardware e software

Retini CAD

Tariffari e prezzari

Unitą di misura

VAM



Home dwg - next dwg

download this dwg

Utenti online